Gewerbe und Denkmal
Ehemalige Schuhfabrik
Berlin – Prenzlauer Berg
- Bauherr
- Vesta Familienholding GmbH & Co. KG
- Planungsleistung
- Objektplanung Freianlagen, Leistungsphasen 1-7
- Fläche
- 350 m2
- Fertigstellung
- 2019
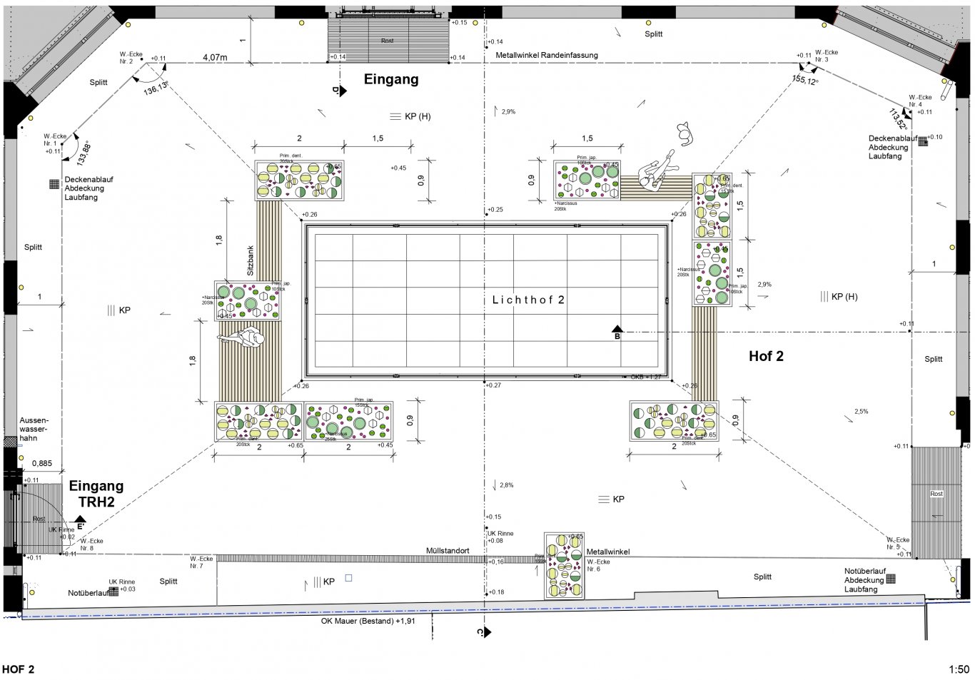
Der gesamte Gebäudeblock zwischen Teutoburger Platz und Schwedter Straße im Berliner Stadtbezirk Prenzlauer Berg ist als Ensemble geschützt. Das entsprechend der typischen Berliner Nutzungsmischung im Innenbereich des Blockes liegende Industriegebäude einer ehemaligen Schuhfabrik wurde als Bürogebäude umgenutzt. Eine großzügige Treppenanlage führt in Hof 1 in das nun ausgebaute Untergeschoss. In Mitten von Hof 2 dient ein geräumiger Lichthof als Terrasse und der Belichtung der im Untergeschoss befindlichen Räume. Die Höfe wurden mit Granitpflaster neu befestigt. Eine Traufe aus grobem Splitt umrahmt die Natursteinpflasterfläche und nimmt die Fassadenbeleuchtung auf. Pflanzgefäße und Sitzobjekte schaffen Atmosphäre und dienen dem Pausenaufenthalt (Umsetzung noch nicht erfolgt).




